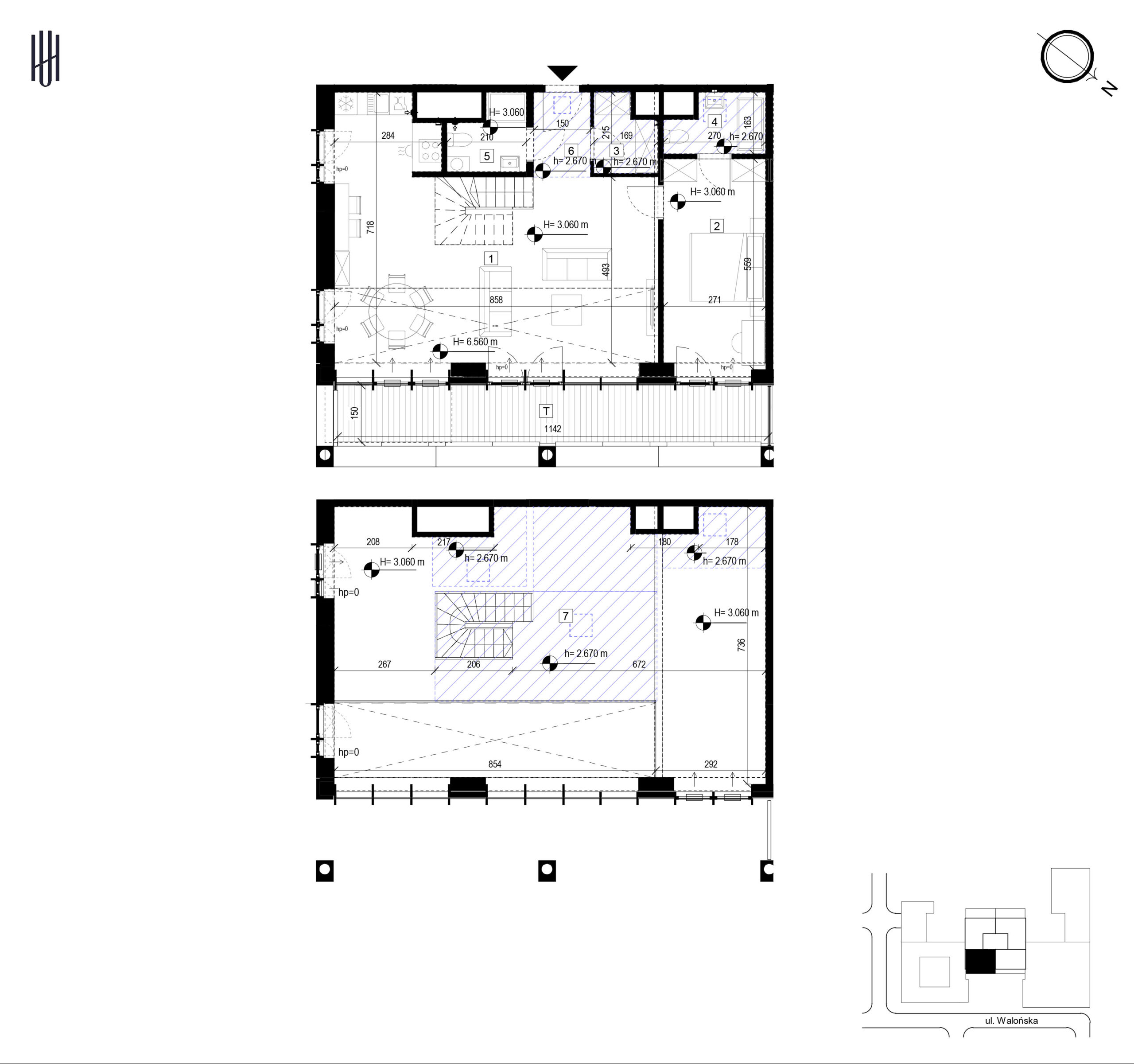
Penthouse Serenit 12/125
ul. Walońska 14 / Wrocław
Skontaktuj się z naszym doradcą, aby otrzymać spersonalizowaną ofertę wyjątkowych apartamentów w The Upper House by Angel.
Biuro Sprzedaży:
ul. Walońska 11/4U, 30-214 Wroclaw